

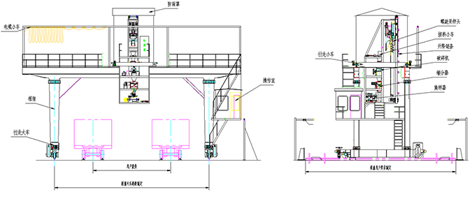
该系统可以对煤堆、火车车皮、汽车车厢、船舱中直接采取样品,安装方式可分为固定式、:轨道移动式和车载移动式。
系统工作过程,由螺旋钻式采样机采集到具有代表性的全断面煤样后,由回转式液压起重机,提起采样头,把煤样放进接料斗中,经给料机把煤样均匀连续地送入破碎机中,破碎后的煤样再进行缩分从而获得所需产品样品,最后样品被收集到防尘、防潮的样品罐中。
门式跨双轨

实物图片


采样方式:依据GB/T19494
标准:≤4000MM
采样深度:<14%
适用水份物料粒度:≤300MM
样品粒度:≤6MM
适用车型:通用敞车水份损失<1%
可控机型:工业控制计算机
控制方式:自动/手动

